全案整装

全案整装

从业经验:9年 辽宁传媒学院

预约设计师

客户是老两口退休后的房子,准备重新翻新,本案对厨房和卫生间的布局方面进行了重新的调整,增加了老人淋浴的空间以及厨房收纳以及台面的面积,搭配暖色调的颜色搭配,布局大方,简单温馨

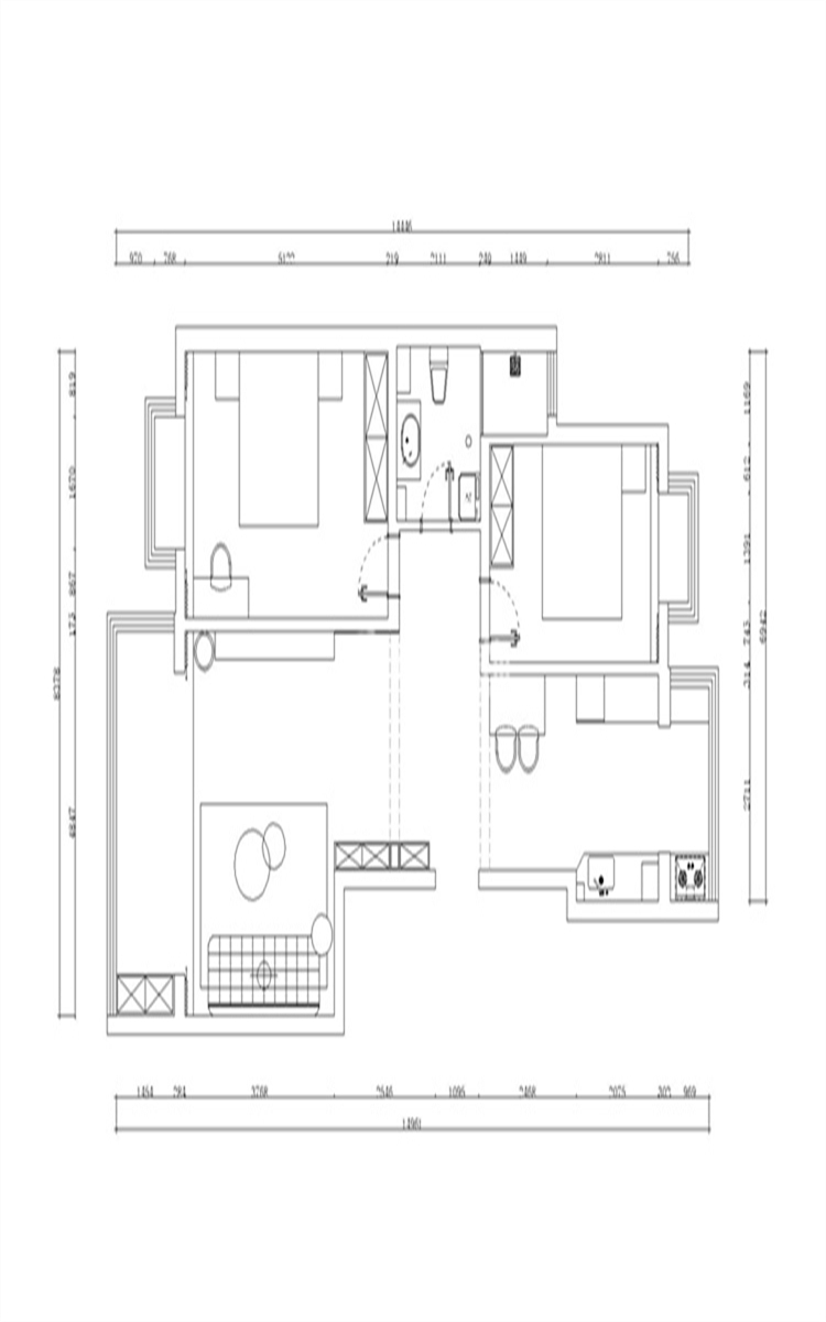
园区名称 圣水苑 案例风格 现代简约 案例面积 121平米 案例户型 二居 设计师 全案整装 案例类型 改善性住宅

全案整装效果图

全案整装实景图

圣水苑-121平-现代风格-客厅-首页.jpg 圣水苑-121平-现代风格-客厅 (2).jpg

客厅方面对原来的二手房不合理的格局重新进行了规划,电视背景墙墙面过空,增加了格栅丰富参差

圣水苑-121平-现代风格-餐厅.jpg 圣水苑-121平-现代风格-次卧.jpg 圣水苑-121平-现代风格-主卧.jpg

增加衣物储存量,并且能规划出单独的换衣区,既是整体,又有分区,合理规化主卧空间

圣水苑-121平-现代风格-卫生间 (2).jpg 圣水苑-121平-现代风格-卫生间.jpg

暖色干净的瓷砖配色,增加独立淋浴区

圣水苑-121平-现代风格-厨房.jpg

厨房整体做开放,两侧延伸做橱柜,储存空间大,台面空间丰富

圣水苑121户型图.jpg

相关效果图推荐

华润二十四城

华润二十四城115平美式

富禹盛京学府

富禹盛京学府113平混搭

华润橡树湾

华润橡树湾124平北欧

中南旭辉和樾

中南旭辉和樾130平现代简约

沈阳林凤家居装饰工程有限公司
辽ICP备2022011902号