吴勇

吴勇

从业经验:11年 辽宁交通大学

预约设计师

中古风格注重空间的合理布局和功能的完整性。硬装方面,多采用木质材料,如深色系的红木、 核桃木等,展现出古朴的质感。空间布局上,多采用对称设计,注重空间的层次感和动线规划。

园区名称 泰莱首园 案例风格 现代简约 案例面积 180平米 案例户型 三居 设计师 吴勇 案例类型 改善性住宅

全案整装效果图

全案整装实景图

泰莱首园 180平 中古风格 客厅1.jpg 泰莱首园 180平 中古风格 客厅2.jpg 泰莱首园 180平 中古风格 首图.jpg

沙发线条简洁大方,搭配柔软舒适的靠垫,既保证了美观,又提供了极致的舒适体验。茶几造型简约而经典,实木的质地与沙发相得益彰,其表面可能有着细腻的木纹,展现出自然的魅力。电视柜的设计既考虑了实用性,又注重了与整体风格的统一。

泰莱首园 180平 中古风格 餐厅.jpg

餐厅采用开放式布局,让空间更加通透,视野开阔,餐桌的设计线条简洁,融入复古的金属框架、雕花等元素,增添韵味。餐厅与厨房之间相互渗透,方便家庭成员在做饭和用餐过程中的交流与互动。

泰莱首园 180平 中古风格 卧室1.jpg 泰莱首园 180平 中古风格 卧室2.jpg 泰莱首园 180平 中古风格 卧室3.jpg

选择米白色或淡米色的墙面漆,这种柔和的色调能够为卧室奠定温馨而淡雅的基调,木质家具采用深胡桃木色或复古橡木色。例如,床架和衣柜,深木色不仅体现了木材的质感,还传达出一种古老而稳重的气息。

泰莱首园 180平 中古风格 卫生间1.jpg 泰莱首园 180平 中古风格 卫生间2.jpg

各个功能区之间的交通流线简洁流畅,从进门到洗漱区、再到淋浴区和如厕区,使用者可以方便地移动,不会出现相互干扰的情况。

泰莱首园 180平 中古风格 厨房.jpg

遵循厨房“洗、切、炒”的操作流线,从水槽到案板再到炉灶,形成一个高效的工作三角形。储物区分布在操作区和烹饪区的周围,方便随时取用物品。用餐区与烹饪区相对独立又相互联系,使用者在烹饪完成后能够方便地将食物端到用餐区。

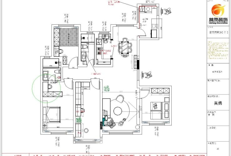
泰莱首园 180平 中古风格 户型图.jpg

相关效果图推荐

华润二十四城

华润二十四城115平美式

富禹盛京学府

富禹盛京学府113平混搭

华润橡树湾

华润橡树湾124平北欧

中南旭辉和樾

中南旭辉和樾130平现代简约

沈阳林凤家居装饰工程有限公司
辽ICP备2022011902号