全案整装

全案整装

从业经验:20年 大连工业大学

预约设计师

好的设计 不会墨守成规 以人为本 充分让业主体验到好设计所带来的美好生活体验

园区名称 恒大天鹅湾 案例风格 现代简约 案例面积 160平米 案例户型 三居 设计师 全案整装 案例类型 儿童房

全案整装效果图

全案整装实景图

新世界卓铸-195平-意式极简-客厅首图.jpg 新世界卓铸-195平-意式极简-沙发背景.jpg

本案户型客厅属于常规开间户型,通过石膏线叠级工艺的设计,让整个空间更加宽敞大气,又不失温馨。又结合新型装饰灯,加强了空间的照明。

新世界卓铸-195平-意式极简-餐厅.jpg

本方案餐厅和厨房相邻,用餐桌划分空间,保证视野开阔性,敞开式的设计,让空间有了延伸感。还有设计了休闲区,在享受美食后有了一个放松身心的去处。通过餐边柜的设计,增加了物品的收纳空间。

新世界卓铸-195平-意式极简-客卧2.jpg 新世界卓铸-195平-意式极简-客卧1.jpg 新世界卓铸-195平-意式极简-主卧室2.jpg 新世界卓铸-195平-意式极简-主卧室.jpg

卧室的设计上,预留了2个南侧房间作为休息之处。将北侧的房间作为书房使用,为孩子的高考提供一切便利条件。

新世界卓铸-195平-意式极简-客卫1.jpg 新世界卓铸-195平-意式极简-客卫2.jpg

本方案的卫生间采用了干湿分离都手法。方便了人在固定时间段内对卫生间的需求。

新世界卓铸-195平-意式极简-厨房.jpg

厨房采用大块墙砖,显得大气,冰箱,厨房却不显得拥挤,U形橱柜与吊柜充分保证了空间的使用率,台面布置符合中国人习惯的“洗切炒”做饭流程。

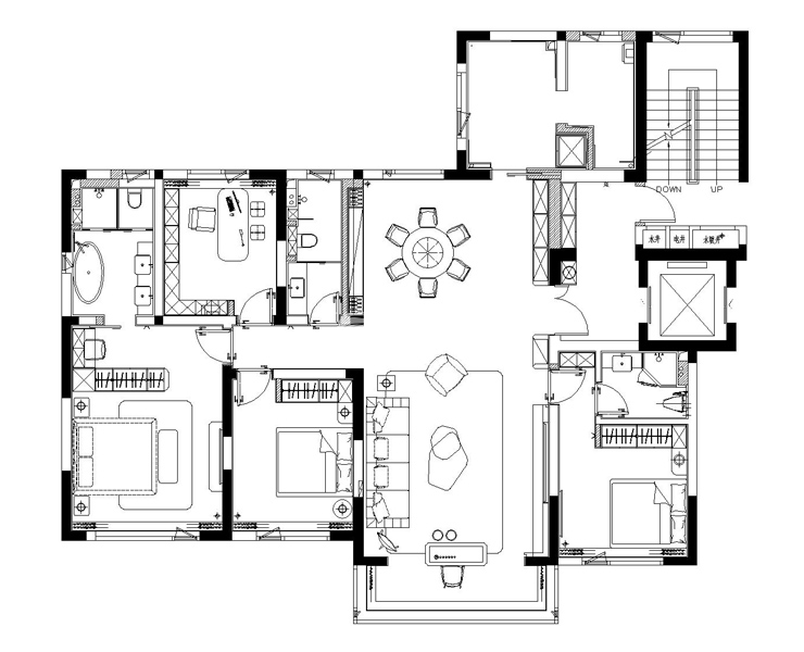
新世界卓铸-195平-意式极简-主卧室衣帽间.jpg 新世界卓铸-195平-意式极简-平面布置图.jpg

相关效果图推荐

华润二十四城

华润二十四城115平美式

富禹盛京学府

富禹盛京学府113平混搭

华润橡树湾

华润橡树湾124平北欧

中南旭辉和樾

中南旭辉和樾130平现代简约

沈阳林凤家居装饰工程有限公司
辽ICP备2022011902号