齐逢辉

齐逢辉

从业经验:12年 鲁迅美术学院

预约设计师

本案以现代元素为主,采用理石质感的石材,搭配暖灰色木质定制类家具,配以亚麻质感的软装饰品,打造一种现代时尚简洁的居住空间

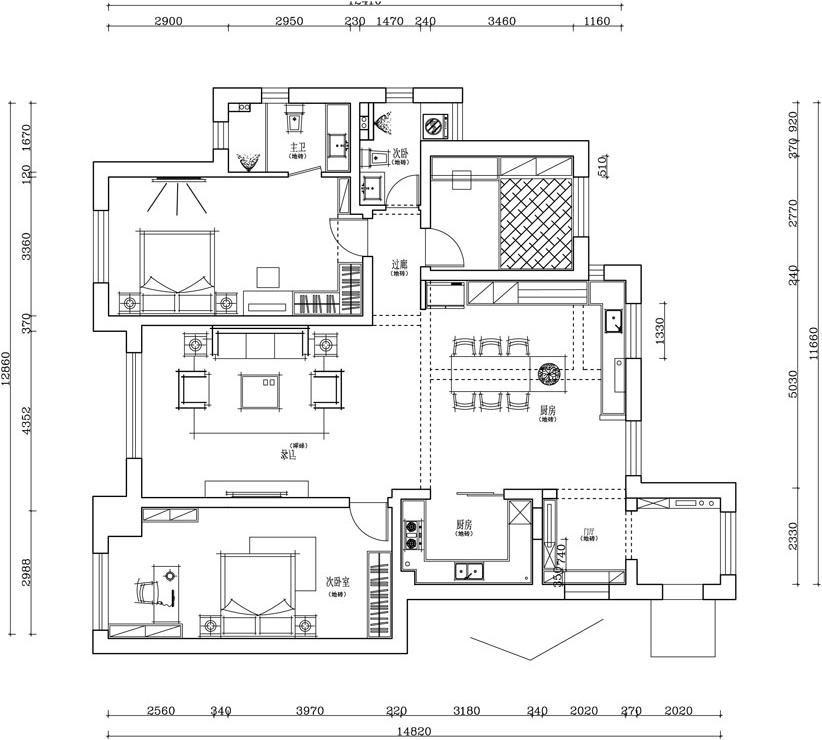
园区名称 新加坡城 案例风格 现代简约 案例面积 140平米 案例户型 三居 设计师 齐逢辉 案例类型 改善性住宅

全案整装效果图

全案整装实景图

新加坡城140-现代简约-客厅图 (2).jpg 新加坡城140-现代简约-客厅图3.jpg 新加坡城140-现代简约-客厅图.jpg 新加坡城140-现代简约-客厅图4.jpg

客厅以简洁的手法设计,简单的吊顶线条,搭配暖灰色理石纹理瓷砖,墙壁局部用了墙板体现了质感和颜色点缀,丰富了层次的变化,背景墙通过大板砖以及格栅展示,家具采用了当下流行的现代极简风格家具,简洁大气。

新加坡城140-现代简约-餐厅图.jpg

餐厅采用了中西厨表现手法,同时做了大中岛,体现了主人对生活的品质的要求,以及使整个餐区看起来更上档次和视觉更宽广,也不会显得杂乱,理石面的餐台更便于日常生活中打理,餐灯取餐桌中心,把区域进行了合理的划分。

新加坡城140-现代简约-次卧室图.jpg 新加坡城140-现代简约-主卧室图.jpg

主卧室功能性非常齐全,衣柜设计更大的收纳量,满足日常物品的储藏,家里更整洁,床头采用了跟客厅同样的色块方式进行点缀,增加了一丝活力,床以舒适的布艺材质为主,简单舒适。

新加坡城140-现代简约-卫生间图.jpg

洗手间采用了暖灰色砖的设计,整体体现出来卫生间的高档感,洗手台根据空间尽可能选用了大的,储物量更多,空间更整洁。

画图  Model (1).jpg

相关效果图推荐

华润二十四城

华润二十四城115平美式

富禹盛京学府

富禹盛京学府113平混搭

华润橡树湾

华润橡树湾124平北欧

中南旭辉和樾

中南旭辉和樾130平现代简约

沈阳林凤家居装饰工程有限公司
辽ICP备2022011902号