孙安强

孙安强

从业经验:10年 东北大学

预约设计师

本设计采用软装配合,简单的线条,简单的组合,再加入简单的元素;发挥结构构成本身的形式美,造型简洁,运用合理的构成工艺,构成一个舒适简单的空间。

园区名称 万达公园 案例风格 现代简约 案例面积 135平米 案例户型 三居 设计师 孙安强 案例类型 改善性住宅

全案整装效果图

全案整装实景图

客厅1.jpg 客厅2.jpg 客厅.jpg

客厅是家庭活动的核心区域,我们采用了较深色的沙发,与地砖形成相对反差的视觉效果。电视柜的设计简洁而实用,又与主色调不同,运用色彩的配置,同时提供了足够的储物空间。

餐厅.jpg 餐厅1.jpg

餐厅位于厨房与客厅之间,采用一体化设计,深色的餐桌与椅子的搭配,延续了整体的设计风格,没有多余的设计让画面变得和谐,也保持了空间的整洁。

客卧.jpg 主卧.jpg 主卧1.jpg

卧室地板与床和柜子形成了对比,窗帘采用渐变色,带有一定视觉冲击又不失和谐

次卫.jpg 主卫.jpg

卫生间同样延续了极简的设计理念,简约为主的装饰打造出一个清明亮的洗漱空间。合理的布局与收纳设计,使得卫生间既实用又美观。

厨房.jpg

厨房继续沿用现代风格,深色大理石瓷砖材质的厨房台面,简约而不简单,整体画面相融。

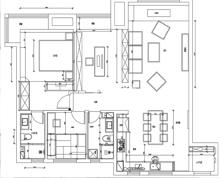
户型图.jpg

相关效果图推荐

华润二十四城

华润二十四城115平美式

富禹盛京学府

富禹盛京学府113平混搭

华润橡树湾

华润橡树湾124平北欧

中南旭辉和樾

中南旭辉和樾130平现代简约

沈阳林凤家居装饰工程有限公司
辽ICP备2022011902号