杨达

杨达

从业经验:10年 东北大学

预约设计师

中古风融合传统韵味与现代简约,注重自然材质与温暖氛围的营造。通过简洁的线条、质朴的色彩,打造兼具文化底蕴与舒适感的居住空间。本案以原木色、大地色系为主,搭配少量中式元素,为沈阳府小区业主打造雅致、温馨的居家环境。

园区名称 沈阳府 案例风格 其他 案例面积 150平米 案例户型 三居 设计师 杨达 案例类型 改善性住宅

全案整装效果图

全案整装实景图

华发中东首府-127平-中古风-客厅.jpg 华发中东首府-127平-中古风-客厅2.jpg 华发中东首府-127平-中古风-客厅首图.jpg

客厅地面通铺浅灰色仿木纹地砖,延伸至餐厅形成连贯效果。墙面采用米白色乳胶漆,搭配简洁的木质线条装饰,顶部以悬浮吊顶搭配无主灯设计,增加空间层次感。L型浅咖色布艺沙发搭配原木色茶几,电视背景墙局部嵌入木质格栅,点缀水墨挂画,简约中透出中式意境。

华发中东首府-127平-中古风-餐厅.jpg

餐厅与厨房采用开放式设计,中间以窄边玻璃推拉门相隔,保证空间通透明亮。实木餐桌搭配浅灰色布艺餐椅,顶部悬挂简约造型吊灯,靠墙设置通顶白色餐边柜,内嵌灯带提升氛围感,整体营造出温馨实用的用餐空间。

华发中东首府-127平-中古风-次卧室.jpg 华发中东首府-127平-中古风-卧室.jpg

卧室墙面铺贴米灰色墙布,搭配浅木色实木床与暖灰色床头软包。无主灯设计结合磁吸轨道灯、床头壁灯,满足不同照明需求。定制通顶白色衣柜搭配木质格栅门板,简约实用,营造静谧舒适的睡眠空间。

华发中东首府-127平-中古风-卫生间.jpg 华发中东首府-127平-中古风-主卫生间.jpg

卫生间墙面铺设浅灰色大理石纹瓷砖,搭配同色系哑光地砖。洗漱区采用悬浮式岩板一体盆,搭配木质柜体,暖光镜前灯营造温馨氛围。淋浴区用玻璃隔断实现干湿分离,黑色五金件增添精致感,整体风格简约且显档次。

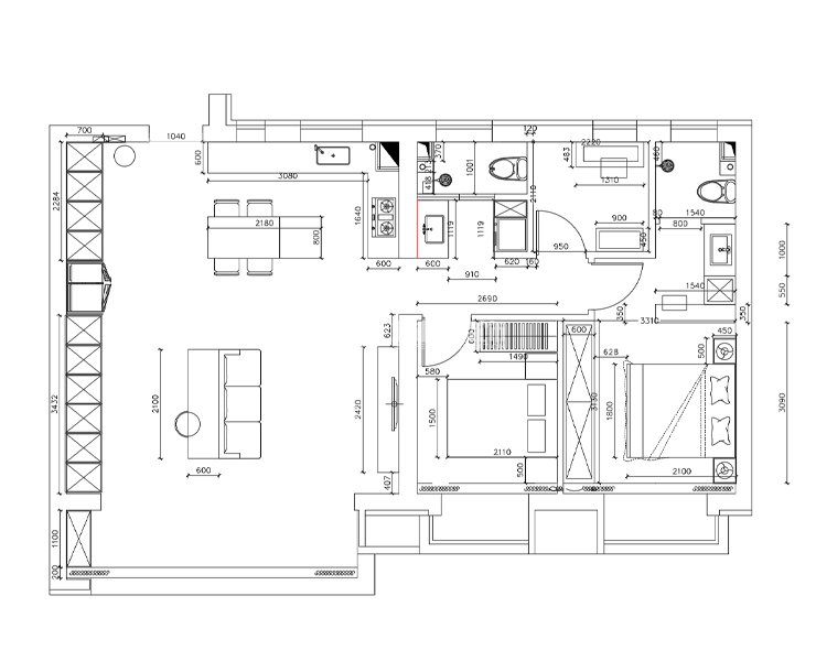
华发中东首府-127平-中古风-书房.jpg 华发中东首府-127平-中古风-玄关.jpg 华发中东首府-127平-中古风-平面布局.jpg

相关效果图推荐

华润二十四城

华润二十四城115平美式

富禹盛京学府

富禹盛京学府113平混搭

华润橡树湾

华润橡树湾124平北欧

中南旭辉和樾

中南旭辉和樾130平现代简约

沈阳林凤家居装饰工程有限公司
辽ICP备2022011902号