高天

高天

从业经验:8年 大连东软信息学院-数字艺术系

预约设计师

客厅整体采用灰白与极简黑搭配,整体白色的墙面让空间显得更加简约纯粹,哑光灰色的地砖打底让空间的层次关系清晰,营造了整体轻松舒适的氛围感。暖白沙发相辅相成,结合无主灯的设计,给人以安静和谐的感受,让主人回到家第一感受是放松的,平和的。

园区名称 中海汇德里 案例风格 现代简约 案例面积 137平米 案例户型 三居 设计师 高天 案例类型 改善性住宅

全案整装效果图

全案整装实景图

中海汇德里-127平-现代风格-客厅.jpg 中海汇德里-127平-现代风格-首图.jpg

本案采用低饱和度的色彩组合,让稳重内敛的气质与优雅精尚的格调并置融合,着力展呈雅致空间的艺术感染力。

中海汇德里-127平-现代风格-餐厅.jpg

餐桌椅颜色的对抗在这里悄无声息的展开,是赋予视觉感官的极致享受。橱柜汲取自然气息,协调了整体空间家居的氛围,自由开放的就餐空间让人不禁融入其中,品味生活的点滴滋味。

中海汇德里-127平-现代风格-北卧.jpg 中海汇德里-127平-现代风格-南次卧.jpg 中海汇德里-127平-现代风格-主卧.jpg

卧室整体色调采用淡米色,床头柜、书桌、窗帘等一系列都配合得天衣无缝,使整个空间和谐美观统一。融入米灰地砖元素,简洁流畅,洋溢着现代文艺风情。衣柜采用无把手设计,线条干脆利落,整体立面整洁,是简约风装修设计的不二之选。床尾一整面收纳衣柜能够满足屋主一年四季的衣服收纳。

中海汇德里-127平-现代风格-主卫.jpg 中海汇德里-127平-现代风格-客卫.jpg

卫生间整体以灰色色调的设计为主,暖白色的空间在灯光的辅助下,视觉上显大且统一。

中海汇德里-127平-现代风格-厨房.jpg 中海汇德里-127平-现代风格-厨房02.jpg

厨房改成敞开式厨房让空间显得更加大气,整体的南北通透性更强,与客餐厅融为一体,橱柜连接通顶柜,柜门与全屋色调和谐一致,打造温柔好看的现代大气的厨房样式。

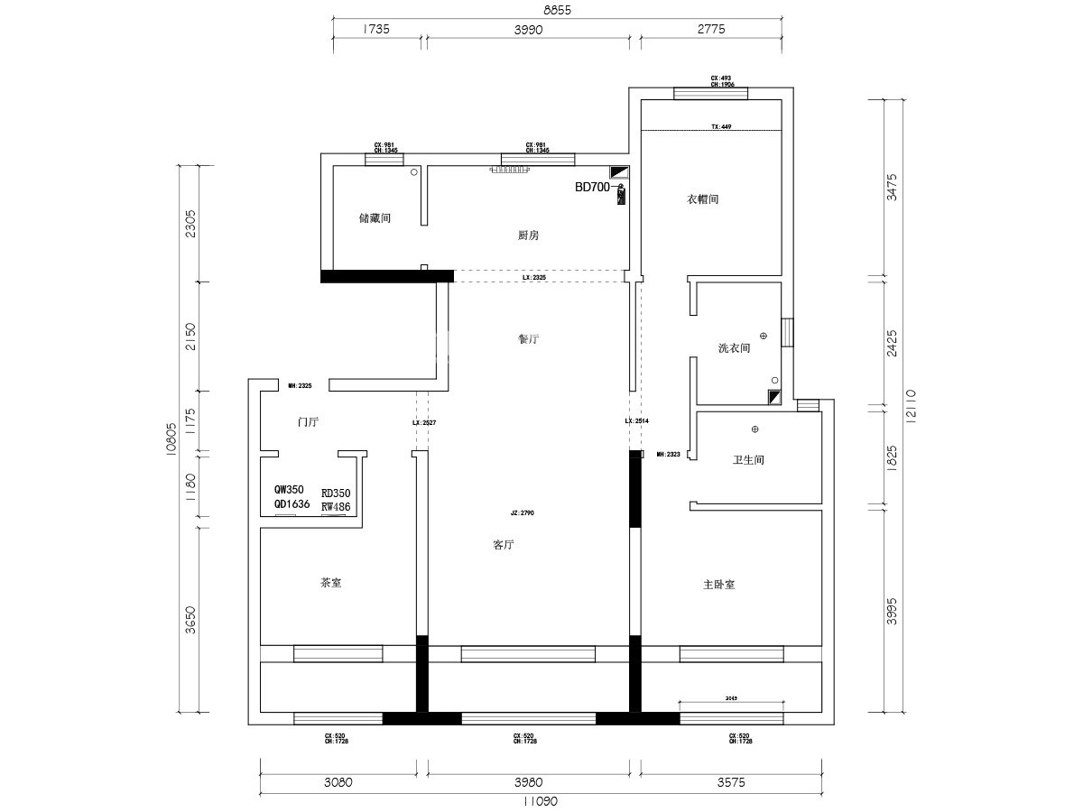
中海汇德里-127平-现代风格-户型图.jpg

相关效果图推荐

华润二十四城

华润二十四城115平美式

富禹盛京学府

富禹盛京学府113平混搭

华润橡树湾

华润橡树湾124平北欧

中南旭辉和樾

中南旭辉和樾130平现代简约

沈阳林凤家居装饰工程有限公司
辽ICP备2022011902号