赵春阳

赵春阳

从业经验:8年 辽宁工程技术大学

预约设计师

客户是两口人,搭配暖色调的颜色搭配,布局大方,简单温馨,配合整体的当下流行的奶油风,使空间更加大气美观温馨

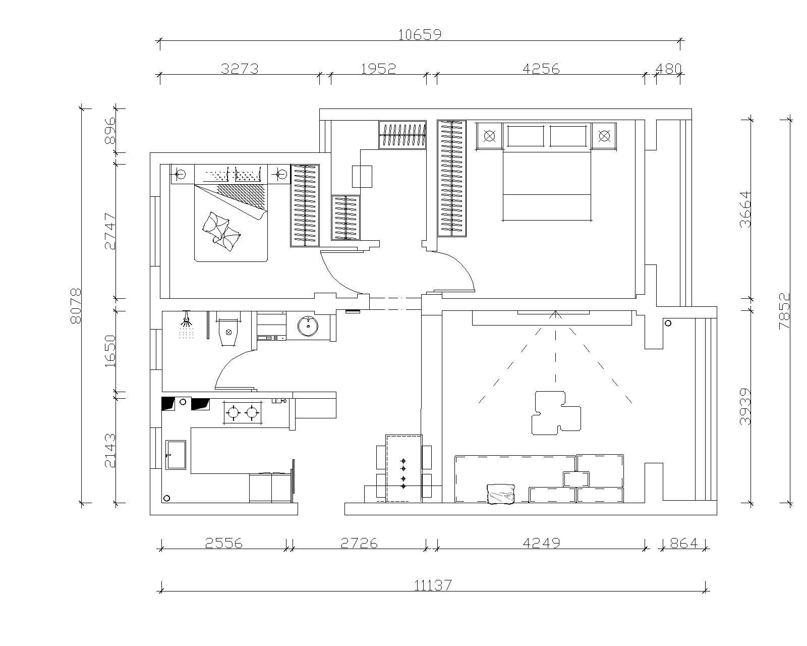
园区名称 格林英郡 案例风格 其他 案例面积 90平米 案例户型 三居 设计师 赵春阳 案例类型 改善性住宅

全案整装效果图

全案整装实景图

格林英郡-90平-奶油风-客厅首页.jpg 格林英郡-90平-奶油风-客厅.jpg

客厅整面墙做了电视背景墙,尤为重要的是增加了入户玄关屏风和柜子的穿插组合,使得空间在美观的基础上还增加了视野的通透性

格林英郡-90平-奶油风-客卧.jpg 格林英郡-90平-奶油风-主卧.jpg

增加衣物储存量,并且能规划出单独的换衣区,既是整体,又有分区,合理规化主卧空间

格林英郡-90平-奶油风-卫生间.jpg

暖色干净的瓷砖配色,增加独立淋浴区,并且做了干湿分离

格林英郡-90平-奶油风-厨房.jpg

厨房整体做拉门,两侧延伸做橱柜,储存空间大,台面空间丰富

格林英郡-90平-奶油风-衣帽间.jpg

两口子东西非常的多,增加了衣帽间和电竞桌的空间

格林英郡-90平-奶油风-玄关.jpg 户型图.jpg

相关效果图推荐

华润二十四城

华润二十四城115平美式

富禹盛京学府

富禹盛京学府113平混搭

华润橡树湾

华润橡树湾124平北欧

中南旭辉和樾

中南旭辉和樾130平现代简约

沈阳林凤家居装饰工程有限公司
辽ICP备2022011902号