姜宇

姜宇

从业经验:18年 哈尔滨师范大学美术系

预约设计师

本案设计整体以温馨,舒适为主导,为业主打造一个简洁、功能性强的家。

园区名称 浦江苑御品 案例风格 现代简约 案例面积 85平米 案例户型 二居 设计师 姜宇 案例类型 改善性住宅

全案整装效果图

全案整装实景图

浦江苑御品-95平-现代风格- 客厅.jpg 浦江苑御品-95平-现代风格- -客厅.jpg 浦江苑御品-95平-现代风格- 客 厅.jpg 浦江苑御品-95平-现代风格- 首图.jpg

客厅整体色调以黑白灰为主,浅灰色的沙发与主色调形成了对比,浅灰色电视背景墙更是凸显高级感。

浦江苑御品-95平-现代风格- 卧室.jpg

卧室家具富有时尚感,现代气息明显。床头定制床头柜令卧室整体更加温馨和谐灰色床头背景墙更加时尚。

浦江苑御品-95平-现代风格- 干区.jpg 浦江苑御品-95平-现代风格- 湿区.jpg

卫生间采用干湿分离的方式,干区地面与客厅地砖通铺,十分干净简洁,充满现代感。

浦江苑御品-95平-现代风格- 厨 房.jpg 浦江苑御品-95平-现代风格- 厨房.jpg

本案是开放式厨房,U型橱柜采用灰色,暖灰色理石的地砖和墙砖,让整个厨房空间整洁,干净。

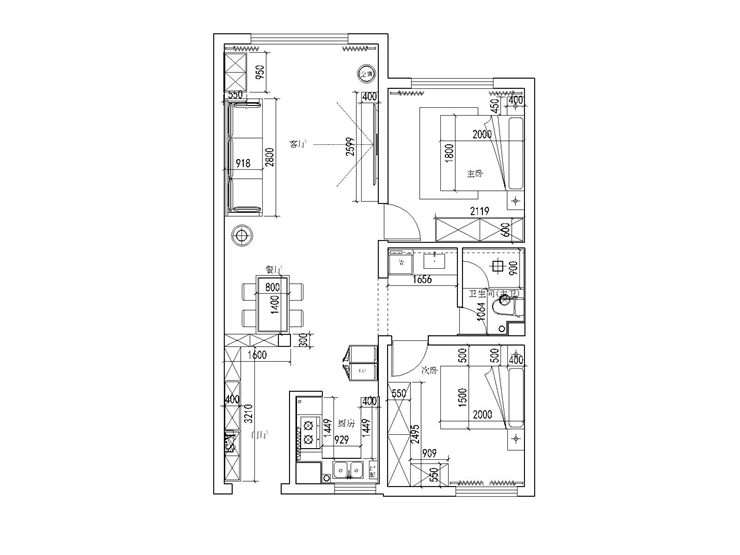
浦江苑御品-95平-现代风格- 玄 关.jpg 浦江苑御品-95平-现代风格- 玄关.jpg 浦江苑御品-95平-现代风格-平面方案.jpg

相关效果图推荐

华润二十四城

华润二十四城115平美式

富禹盛京学府

富禹盛京学府113平混搭

华润橡树湾

华润橡树湾124平北欧

中南旭辉和樾

中南旭辉和樾130平现代简约

沈阳林凤家居装饰工程有限公司
辽ICP备2022011902号