郑婷婷

郑婷婷

从业经验:9年 鲁迅美术学院

预约设计师

北欧风格装修以简约为主,整体给人一种自然宁静,实用的艺术气息。

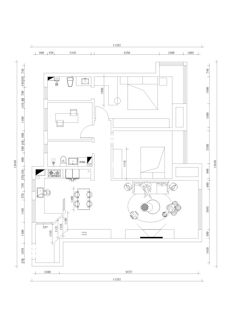
园区名称 万达公园one 案例风格 其他 案例面积 130平米 案例户型 三居 设计师 郑婷婷 案例类型 改善性住宅

全案整装效果图

全案整装实景图

S5郑婷婷-万达公园ONE-130平-北欧风格-首图.jpg

客厅采光较好,家具用柔和色彩,素色家具来搭配。原本没有阳台空间,用吊棚做隐形衣架划分空间。

S5郑婷婷-万达公园ONE-130平-北欧风格-餐厅.jpg S5郑婷婷-万达公园ONE-130平-北欧风格-餐厅1.jpg

餐边柜增加了收纳功能。冰箱做内嵌 旁边高柜可以做零食柜。

S5郑婷婷-万达公园ONE-130平-北欧风格-次卧.jpg S5郑婷婷-万达公园ONE-130平-北欧风格-主卧.jpg S5郑婷婷-万达公园ONE-130平-北欧风格-主卧1.jpg

让储物空间更多,做了转角衣帽间和床尾柜的设计。

S5郑婷婷-万达公园ONE-130平-北欧风格-卫生间.jpg

卫生间用600*1200的柔光转,干净,整洁。

S5郑婷婷-万达公园ONE-130平-北欧风格-书房.jpg S5郑婷婷-万达公园ONE-130平-北欧风格-书房.jpg S5郑婷婷-万达公园ONE-130平-北欧风格-平面图.jpg

相关效果图推荐

华润二十四城

华润二十四城115平美式

富禹盛京学府

富禹盛京学府113平混搭

华润橡树湾

华润橡树湾124平北欧

中南旭辉和樾

中南旭辉和樾130平现代简约

沈阳林凤家居装饰工程有限公司
辽ICP备2022011902号